Reklama

Środa, 17 Grudzień
Imieniny: Jolanty, Łukasza, Olimpii -

Reklama


Reklama

Basen i nowoczesna szkoła powstaną w Kamionku


Nowoczesna szkoła z basenem, halą sportową, boiskami... powstanie w Kamionku. Początkowo obiekt miał stanąć przy ulicy Łomżyńskiej w Szczytnie. - Nie udało nam się jednak porozumieć z właścicielem gruntu, firmą Novum, stąd zmiana naszej decyzji o lokalizacji tej inwestycji – wyjaśnia wójt Sławomir Wojciechowski. - Szkołę i basen na pewno wybudujemy, bo jest taka potrzeba - dodaje. Koszt inwestycji jest imponujący, bo szacuje się, że będzie to kwota 40 mln zł.


  • Data:

Taki obiekt może zagrozić miejskiej oświacie, bo wójt zakłada, że z usług placówki w Szczytnie mają korzystać głównie uczniowie z terenu gminy wiejskiej Szczytno, którzy w tej chwili korzystają z miejskich szkół.

 

- W tej chwili to około 550 dzieci – wylicza wójt Wojciechowski. - Ucieka nam rocznie około 4 mln subwencji oraz 750 tys. zł, które dopłacamy, aby nasi uczniowie mogli do tych szkół chodzić.

 

Gdy szkoła w Kamionku powstanie, budżet miasta zubożeje o około 5 mln zł.

 

Szkoła wielofunkcyjna

 

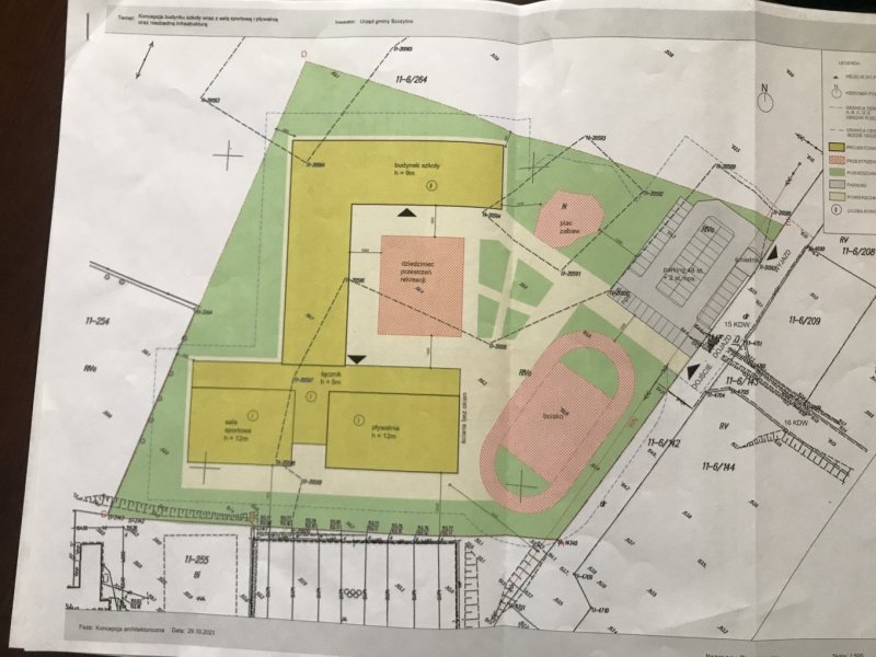
Gmina Szczytno ma już koncepcję architektoniczną nowej szkoły. Obiekt ma zając niemal 2 hektary grunty, tuż przy boisku Orlik. Pływalnia, 30 sal lekcyjnych, hala sportowa, boiska sportowe, bieżnie, stołówka, zaplecze, biblioteka, świetlica, parkingi, plac zabaw...

 

- wszystko jest już zaplanowane. - Obiekt ma być nowoczesny i funkcjonalny – mówi wójt Wojciechowski. - To nasz główny warunek. Doskonale będzie się nadawał do utworzenia na przykład klas sportowych. Staramy się pobudować obiekt, który nie będzie nas ograniczał i stanie się atrakcyjny dla uczniów i ich rodziców.

 

Decyzje w rękach KOWR i mieszkańców

 

Gmina przygotowuje się do pozyskania gruntów od Krajowego Ośrodka Wsparcia Rolnictwa.


Reklama

 

- Pierwszym krokiem była koncepcja, bo na jej podstawie możemy starać się o warunki zabudowy, a potem wnioskować do KOWR o przekazanie trenu – wyjaśnia wójt Wojciechowski. - To pierwszy krok naszej inwestycji, ale bardzo ważny. Decyzja o budowie szkoły zapadła w naszych głowach i na pewno będziemy realizowali ten pomysł. Potrzebujemy jednak terenu, a ten w Kamionku nadaje się do tego idealnie.

 

Po otrzymaniu gruntów gmina zamierza przeprowadzić konsultacje z mieszkańcami. - Pokażemy im, jakie mamy plany i co chcemy budować – mówi wójt. - Zapytamy oczywiście też i o to, czy poślą tam swoje dzieci. Ale o chętnych się nie martwię, bo Kamionek, Szczycionek, Lipowe Góry bardzo się rozwijają. Poza tym już słyszę głosy, że jak będzie basen to i miejskie dzieci będą chciały przyjść do naszej szkoły.

 

Gmina zakłada, że w każdym roczniku powstaną 3 oddziały. Klasy maja liczyć po 20-22 uczniów. Powierzchnia użytkowa budynku samej szkoły to aż 3500 m2. Szkoła miałaby pomieścić ok. 600 uczniów. Szacuje się, że inwestycja ma kosztować około 40 mln zł. Oddanie placówki do użytku planuje się już na 2024 rok.

 

Czy miasto obroni swoje szkoły?

 

Czy nie lepiej połączyć siły i zbudować basen i rozbudować istniejącą szkołę w Szczytnie? Takie pytania padają głównie ze strony miejskich radnych.

 

- Jest to też jakaś droga, ale jak na razie nie widzę, aby ktokolwiek ze strony miasta chciał z nami na ten temat rozmawiać – mówi wójt Sławomir Wojciechowski. - Mimo że wielokrotnie mówiłem to publicznie, że jestem na takie rozmowy otwarty. Dłużej nie mogliśmy czekać, dlatego idziemy własną drogą. Muszę dbać o mieszkańców gminy. Choć wciąż nie przekreślam wspólnej inwestycji – dodaje. - Z samego gadania nic nie wynika. My wolimy działać. I to robimy.

Reklama

 

- Będę starał się doprowadzić do spotkania grupy radnych z panem wójtem Wojciechowskim – komentuje Zbigniew Orzoł, szef komisji oświaty w radzie miejskiej. - Wydaje mi się, że jest to doskonała okazja, aby taką inwestycję zrealizować wspólnie na terenie Szczytna. Rozbudowa Szkoły Podstawowej nr 6 w Szczytnie, dobudowa basenu i kilku boisk przysporzyłaby o wiele więcej korzyści i miastu, i gminie, niż taki obiekt w Kamionku. A przy okazji byłoby nieco taniej, bo koszty można byłoby podzielić na dwa, a może i na trzy samorządy, gdyby udało się wciągnąć w to też na przykład Starostwo Powiatowe w Szczytnie.

 

Krzysztof Mańkowski, burmistrz Szczytna na razie nie chciał komentować oświatowych planów gminy Szczytno.

 

 

 

fot. W piątek do Urzędu Gminy Szczytno dotarła wstępna koncepcja budowy szkoły z basenem w Kamionku



Komentarze do artykułu

dr

Jakieś tam szkoły, baseny wymyślają. Stanowiska wędkarskie, hamakowiska, strefa wypoczynku na Placu Juranda- to jest to, właściwe inwestycje oczekiwane przez mieszkańców. A kosmodrom tez będzie jak wybierzemy Pana Burmistrza na drugą kadencję. Kosmodrom idealnie wpisuje się w wizję rozwoju naszego miasta.

Młody

Panie Burmistrzu Mańkowski tak, Pan kpił z tego pomysłu, cyt. Szybciej wybuduję kosmodrom niż wójt szkołę. Czy to nie te słowa Pan wypowiadał. Więc czekamy na czyny z Pana strony.

Godlewski Sławomir

Myślę,że koncepcja P. Wòjta WOJCIECHOWSKIEGO o samodzielnej budowie szkoły jest traina.Należy pamiętać co było z wodociągiem .

Moeszkaniec

Rewelacyjny pomysł. W kamionku i przyległych wsiach jest bardzo wiele dzieci w wieku szkolnym które chętnie z tej szkoły skorzystają. Pewnie skorzystają też dzieci ze Szczytna gdyż komunikacja miejska w tym kierunku i jest bardzo dobrze zorganizowana. A naprawdę skończy jak dobrze trafiona inwestycja w centrum miasta dom handlowy Mazur.

Daniel

A gdzie basen dla mieszkańców do cholery ile można zostawiać pieniędzy w innych miastach gdzie trzeba ciągle jeździć żeby się zrelaksować to już jest chore

Hmmm

I spokój w Kamionku się skończy....

Napisz

Galeria zdjęć

Reklama

Reklama


Komentarze

Reklama