Reklama

Poniedziałek, 22 Grudzień
Imieniny: Bożeny, Drogomira, Zenona -

Reklama


Reklama

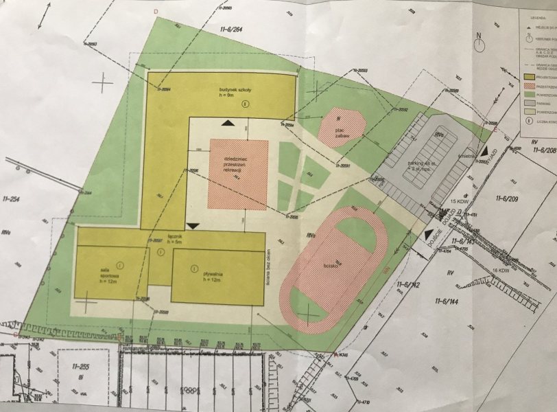
Szkoła w Kamionku nadal aktualnym tematem, będą konsultacje


Władze gminy Szczytno nie rezygnują z budowy szkoły z basenem w Kamionku. - Dostaliśmy właśnie wstępną zgodę z Krajowego Ośrodka Wsparcia Rolnictwa w Olsztynie na przejęcie części gruntów pod tę inwestycję w Komionku – mówi wójt Sławomir Wojciechowski. - Sprawa poszła teraz do Warszawy do ministerstwa. Czekamy na zgodę.


  • Data:

Wójt Wojciechowski dodaje, że na tę chwilę jego samorząd nie rezygnuje z tego przedsięwzięcia. - Gdy otrzymamy zgodę na przejęcie gruntów, zrobimy konsultacje z mieszkańcami, głównie tymi, których dzieci chodzą do miejskich szkół, czy są zainteresowani takim obiektem. Rodzic będzie musiał złożyć deklarację – mówi wójt. - Od efektu tych rozmów uzależniamy dalsze nasze działania. Tak czy inaczej myślę, że nowoczesny budynek szkoły jest potrzebny. Byłaby to konstrukcja modułowa z możliwością rozbudowy – dodaje.


Reklama

Reklama



Komentarze do artykułu

Mieszkaniec Gminy

Panie Wójcie, Pani Wicewójt proszę budować szkołę! Im szybciej tym lepiej :) Wtedy nie będziecie płacić burmistrzowi i zobaczy jak szkoły się pomniejszą. Proszę tylko zadbać o kadrę uczących tam nauczycieli, by byli spoza układów miasta i macie idealne warunki na wszystko. Miastowych niech kopnie zazdrość, będą wysyłać swoje dzieci do gminnej placówki. Miasto będzie płacić gminie…idealny układ. :) Gmina pomoże :))) ludzie dobrzy również!

Napisz

Galeria zdjęć

Reklama

Reklama


Komentarze

Reklama